proyectos01

Proyecto Valle Inclán

Inmueble situado en la calle Valle-Inclán, en una zona residencial de León con todos los servicios a pocos minutos: supermercados, colegios, transporte público y zonas verdes. Un entorno cómodo y funcional que facilita la vida diaria y ofrece buena conexión con el resto de la ciudad.

Piso bajo exterior recién reformado, ubicado en un edificio de 1950, con una superficie de 52 m² construidos. Cuenta con nueva instalación tanto de fontanería como de electricidad y con calefacción y agua caliente por caldera de gas.

 

Se encuentra en la calle Valle Inclán, a tan solo 3 minutos andando del Palacio de Congresos de León, 5 de la estación de Renfe y a 10 del centro de la ciudad, en una zona bien comunicada.

 

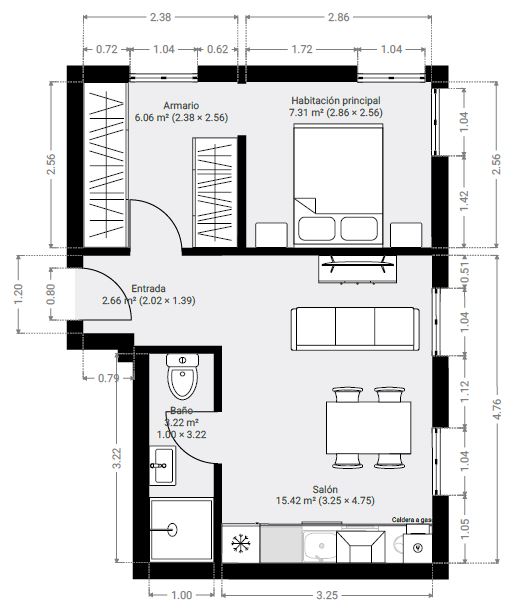
Se ha redefinido por completo la distribución ajustándola a las necesidades de hoy en día. La vivienda consta de un recibidor que da acceso a dos zonas. A la izquierda, hay un vestidor con ventana y, junto a este, la habitación principal, con dos ventanas en esquina.

 

De frente, desde el recibidor, se accede al salón con cocina americana, un espacio muy bien iluminado. Desde aquí se entra al baño, que cuenta con WC, lavabo y ducha.

 

Una vivienda funcional, lista para entrar a vivir y con buena conexión tanto al centro de León como a servicios cercanos.